Обновление и расширение дома в Аргентине
Проект CASA DOMINGA — дом площадью 310 м2, разработанный для семьи с расширением и модификацией существующего дома.

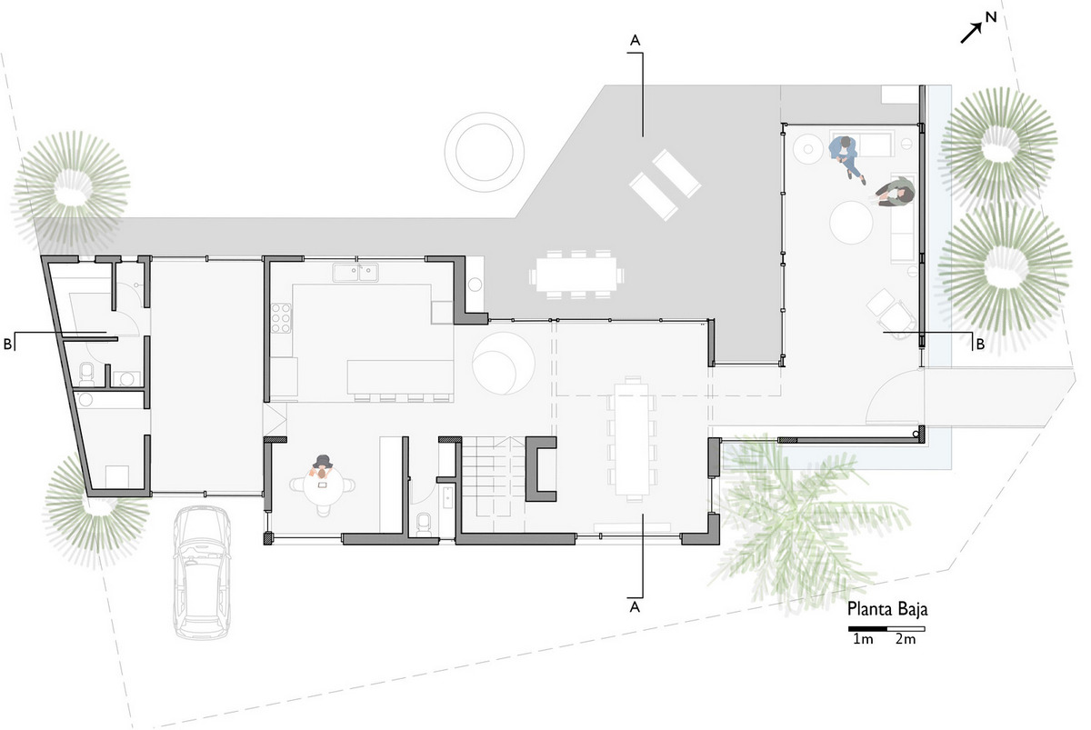
Проект был разработан с учетом устойчивого развития и использования материалов из старого дома. В доме предусмотрены спальни для каждого из юных участников и отдельный люкс для взрослой пары.
Проект реализован в форме буквы «L» и с учетом границ участка и особенностей участка. Главный фасад обращен внутрь участка для лучшей ориентации и уединения с общественной улицей.
Композиция отделки создает уникальную архитектурную индивидуальность, которая живет в экосистеме.
В доме предусмотрены сбор дождевой воды для орошения, солнечные панели для освещения, шторы для северной стороны, солнечный водонагреватель, перекрестная вентиляция и резервуары для воды.






















archdaily.com
4 комментария
Хотя, возможно, жителям колымского края он будет крайне интересен.
Это часть нашей внутренней идентичности.